Via Porras, San Francisco
| Cuartos | 4 Baños | 589 mt2 | 14 Estacionamientos |
Ubicación: Vía Porras, San Francisco
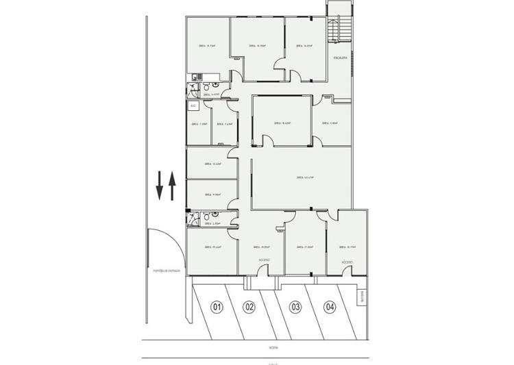
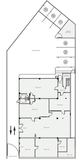
Terreno: 740m2
Construcción: 589m2
Definición:
• Edificio de 2 plantas (cada una de 294.50m2)
• Recepción
• 4 baños
• Cafetería
• Con oficinas cerradas
• Salón de reuniones
• Portón de entrada a estacionamientos privados
• Espacio de estacionamientos para 14 autos / 4 parte frontal
• Depósito
• Excelente ubicación, cerca de principales vías y comercios
• Contrato mínimo de 5 años
Precio de alquiler: $6,150.00
